







«Закругленные» готовые бани стали нашим ответом на пестовские мобильные сарайчики. Перед нами стояла задача разработать недорогую модель мобильной бани высокого качества и эстетичного вида. Взяв за основу обычную прямоугольную форму классической бытовки, мы довели ее до оригинального дизайнерского решения — соединили крышу и заднюю стену закругленным углом. Мягкая финская черепица идеально легла на новую конструкцию — и вот перед вами новая линейка «Закругленных» бань.
Красивый переход крыши в стену дополняется маленькой уютной террасой и фирменной сборкой из доски внахлест. Цвет бани и декоративных элементов на выбор клиента.
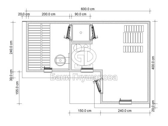
Баня привозится на участок в уже готовом виде с печью, окнами, скамейками, дверями и пр. Установка занимает всего несколько часов, после чего можно приступать к первой протопке.
Гарантия на все виды работ и оборудование 12 месяцев.
Вы будете в восторге от качества сборки, идеальной подгонки вагонки и плинтусов, красивой печи и уютной атмосферы в сауне и комнате отдыха.