Рязань
г. Рязань, улица Маяковского, 49

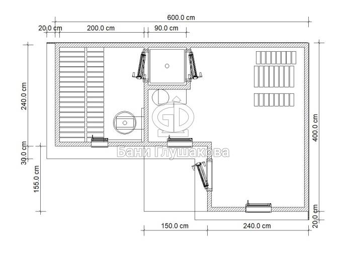
Угловая баня «Мини» с террасой

Размеры: 4х6 м
Площадь: 18 кв.м
Цена по запросу
Обсудить проект

Описание проекта

Представляем вам проект угловой бани 4х6 с террасой. Баня сделана по каркасной технологии в нашей фирменной сборке из доски внахлёст. По планировке внутри 3 отделения: большая комната отдыха, душевая кабина и парная. Здесь всё продумано до мелочей и рачительно используется каждый сантиметр площади.

Подробнее

Сделана выносная топка — так удобнее топить и сохраняется чистота в парной. Рядом установлена и душевая система: бойлер, насос. Хотя оборудование и объёмное, благодаря умелому расположению не доставляет неудобств.

Парная сделана в наших лучших традициях: двухуровневый полог с удлинённым нижним ярусом; грамотно расположенная вентиляция создаёт хорошую циркуляцию воздуха; поставлена стеклянная дверь, которая не боится ни влажности, ни высокой температуры; повешены красивые абажуры и сделана подсветка нижнего полога; все поверхности тщательно зашлифованы; печь установлена с учётом всех требований пожаробезопасности.

Опции объекта на фото

  • терраса
  • улучшенная планировка
  • авторский проект
  • из доски внахлёст
  • выносная топка
  • топка с панорамным стеклом
  • светильники в парной
  • красивая спинка полога
  • душевая система
  • стеклянная дверь в парную
  • комплект мебели
  • двухуровневые пологи
  • подсветка нижнего полога
  • дверь «Корабельная»
  • материал: ель/сосна
  • цвет: «Орегон»+«Белый» Биотекс

* Внимание! В характеристиках и опциях указана нестандартная комплектация бани. Вы можете заказать повтор или выбрать доп.опции для формирования собственной комплектации.

Комплектации и цены

Стоимость объекта зависит, главным образом, от выбранного материала. Здесь приведены цены на базовую (стандартную без дополнительных опций) комплектацию в разных исполнениях.

Угловая баня
 
Уточняйте

В базовую комплектацию входят:

Общая комплектация

Лучший способ понять, какие бани мы строим и как они выглядят изнутри — заглянуть в нашу Галерею выполненных работ. Там собраны реальные объекты, по которым сразу виден уровень исполнения и детали отделки.

Раньше мы публиковали подробные списки комплектующих под каждым проектом, но со временем поняли, что это только путает. Одинаковые с виду бани могут сильно отличаться по «начинке» под конкретные задачи заказчика. Чтобы не вводить вас в заблуждение общими цифрами, мы перешли на индивидуальные расчеты.

Просто напишите нашему менеджеру — он подготовит актуальную смету именно под ваш запрос, где будет прозрачно расписано, что входит в стоимость, а на чем можно сэкономить или, наоборот, усилить.

Доска в нахлест

Сухая, строганная, покрашенная и только потом установленная доска внахлест одна на другую, (если это баня «Барн», то обшивается имитацией бруса), если баня «Кубота», то планкеном.

Печь KOSTЁR DS Rain 16K

Печь с парогенератором KOSTЁR DS_Rain16К, мы сделали тест-драйв и записали видеообзор на «Костёр» RAIN.
Сделана из котловой стали 4 мм, верхние элементы из нержавеющей стали что делает печь практически не убиваемой

Негабарит: сборка на участке

Сборка входит в стоимость

Пологи сорт А

Доска для пологов и трапиков из осиновой вагонки сорта «А» (идеальная бессучковая доска).

Электропроводка

Входит в стоимость. Включает светильники в каждом помещении, вводный автомат, негорючий провод в парную, розетка в комнате отдыха (в банях-бочках розетка устанавливается по требованию).

Покраска бани снаружи

В два слоя.

Межкомнатные двери

Внутренние двери стеклянные сатин матовый (мы делаем двери на заказ толщиной 8мм, а не 6 как большинство, уж очень они хлипкие из 6мм)

Кровля

Мягкая битумная кровля фирмы «Технониколь» SHINGLAS серии «Финская». Цвета: красно-коричневый, коричневый, зеленый, темно серая

Мебель в баню

Массивная мебель нашего производства, основа из фанеры, верх из массива, стол и две скамейки, есть табуреты но их нужно оговаривать отдельно.

Дымоход

Дымоходы из нержавеющей стали 0,8 мм, трубы сендвичи

Душевое оборудование

Сделано полностью готовое душевое решение из бака, бойлера, насоса, смесителя и душа, поддон в душевой, смотрите видео

Душевой поддон

Установлен в помывочном отделении пластиковый герметичный поддон с сифоном для слива воды, в него вложен деревянный трапик (в планировках, где подразумевается душевое помещение). Ссылка на фото и видео

Внутренние стены

Обшиты сухой вагонкой сорта «АБ» толщиной 16 мм.

Стены парной

Из осиновой вагонки А класса (бессучковая)

Окна

Деревянные окна: настоящие деревянные стеклопакеты заводского качества с хорошей фурнитурой. ссылка на видео

Доска половая

Монтируем пол из сухой шпунтованной доски 28мм толщиной

Дополнительно можно заказать (опции)

Эти опции не входят в стандартную комплектацию. Они существенно повышают комфорт, но не являются обязательными. Хотите чуть больше роскоши и уюта? Смело добавляйте эти приятности к заказу!

Басту

Вентиляция баста, смотрите цену, фото и видео, но уже ставим нашу компактную Димасту, Вентиляция в бане которая сделает нахождение в парной более комфортным, ссылка на видео и второе видео у новой бане бочке

Доставка

Рассчитывается индивидуально

Вешалка "Спилы" №4

Вешалка в баню, очень красивый вариант, сделает баню уютнее ссылка на все фото и видео

Сетка каменка

Дополнительное место под камни которые также хорошо нагреются как и в печи и будут аккумулировать тепло, смотрите мой видео обзор и уже можно заказать каменку из нержавейки нашего производства. видео по ссылке

Бак на трубе

Для горячей воды, самоварного типа, устанавливается над печью на трубе, объём 55 л. , видео о пользе бака на трубе, мое мнение

Осиновая термовагонка в парной

У нас появилась новая опция: теперь можно заказать отделку парной осиновой термовагонкой. Как это выглядит на видео.

Термированная доска – это дерево, которое подвергается обработке высокой температурой в специальной камере. В результате из дерева испаряются все сахара и смолы, поры запаиваются и получается материал, который практически не впитывает воду.

Для мокрых помещений это просто идеально!

Печь с закрытой каменкой «ГИД 4»

Печь оснащена внутренней закрытой ёмкостью, куда закладываются камни. Это позволяет нагревать камни до 400-500С. Тогда получается мелкодисперсный перегретый пар, который легко переносится и не так экстремально повышает влажность в парной. Подробнее о моделе.

Такую печь за дополнительную стоимость можно установить в практически любую баню. Пожалуйста, ознакомьтесь с видео.

Пологи из ольхи

Можно заказать в парной пологи из ольхи. Эта древесина обладает низкой теплопроводностью, а значит при соприкосновении с кожей не будет ожога. Подробнее в видео.

Светильники на террасу или дорожку

Можно заказать светильник нашего производства для террас или дорожек, Ссылка на фото и видео и цену

Дверь металлическая

Посмотреть пример установленной двери можно по ссылке

Диодная подсветка в парной

Можно сделать в парной диодной освещение лентой, в спинке или под пологами, ссылка на фото и видео

Печь топкой на улицу

Печь сделать топкой на улицу можно с утепленным экраном, цена, фото, видео по ссылке

Вентиляция в душевой

Советуем ставить в душевом помещении вентиляционный клапан, смотрите видео с моим опытом

Приточная вентиляция Второе дыхание

Приточная вентиляция для тех кто любит парится лежа,фото и видео

Приточная вентиляция под печью

Делается под печью для получения свежего воздуха в парной под печью, ссылка на видео

Пологи без ножек

Можно заказать изготовление пологов как нижних так и верхних без опорных ножек по середине, нижний полок можно сделать без ножек в большинстве случаев, а верхний полок без ножет делается только в вариантах когда нижний полок удлинен до стены. ссылка на видео или перейдите на страницу с фото, видео и подробным описанием этой услуги.

Поддон во всю парную

Можно и нужно заказать в парной пластиковый пол во всю парную с деревянными трапиками, Ссылка на фото и видео

Дверь ПВХ Усиленная

Наиболее хороший и долговечный вариант двери, включает уже полноценный замок с ручкой, потребуется доплата, точнее стоимость можно у знать у менеджера. Ссылка на фото и видео двери

Панно из можжевельника

В парной можно установить панно из можжевельника как на видеоссылка на страницу с фото

Окно высокое

Можно заказать установку окон (только в каркасные варианты) размером 1470х570, открывающиеся если замена окна то +2500р а если дополнительное окно то +5000р, пример такой бани на видео

Рисунок между полками

Расстояние между полками можно сделать с орнаментом из тех же досок что и пологи, подробно посмотрите перейдя по ссылке

Спинка в парной

Установить удобную и красивую спинку в парной, фото и видео на странице по ссылке

Светильник потолочный

Установить на потолок в комнату отдыха светильник под названием "Желтый квадрат", посмотреть его можно по ссылке или на видео

Обкладка экрана

Если топка через стену то можно сделать красивые наличники из брашированной доски с полочкой на верху,

Обогреватель

Можно установить конвектор на стену 1.5 квт, он будет с гарантией на момент покупки бани

Уголок скамейка со скосом

Можно в комнате отдыха сделать угловой комплект скамеек с откидными крышками, посмотреть пример перейдя по ссылке, отличие этого уголка что что для ног удобнее, сделан под углом низ.

Скамейка со спинкой

Можно заказать либо отдельно, либо поменять стандартную скамейку на эту со спинкой с доплатой за каждую скамейку, ссылка на страницу со скамейкой

Декоративные светильники

Установить красивые светильники, которые украсят вашу парную, ссылка на видео, а также можно сделать раздельное включение под полками и верхними светильниками ссылка на видео.

Мягкий уголок для угловой

может быть привезен для вас мягкий кухонный уголок, очень удобен и вписывается в размеры бани, стоимость от 12-15 тр (уточняйте у менеджеров)

Мангал в угловой бане

Установлен в отдельном помещении и изолирован защитным материалом

Камни в печку

За дополнительную плату привезем, марку и цены уточняйте у продавцов

Свайно-винтовой фундамент

Установка винтовых свай может осуществляться как нашими специалистами, так и подрядчиками — в зависимости от времени года и обстоятельств.

Поможем с расчётами и выбором

Требуется подробная консультация? Свяжитесь с нашими менеджерами. Мы подготовим индивидуальную смету, уточним сроки изготовления и проконсультируем по доставке в ваш регион. Ваша баня начинается с простого разговора!

Олег Замятин

Менеджер выставки «Мега»

Выставка «Мега» расположена по адресу:

г. С.-Петербург, Мурманское ш. 1, 12-ый км, ТЦ МЕГА на Дыбенко (эксподом №17А)

Открыто ПН, ВТ, СР, ЧТ, СБ, ВС с 9:00 до 18:00. ПТ — выходной

Визит только по предварительной договорённости с менеджером!

+7 (962) 680-36-27

perevoznyebani@yandex.ru

Сергей Суслов

Менеджер выставки «Маяк»

Выставка «Маяк» расположена по адресу:

г. В.Новгород, ул. Державина, 21А

Открыто Вт, Ср, Чт, Пт и Сб с 10 до 19 в офисе. Пн и Вс выходные.

Визит только по предварительной договорённости с менеджером!

+7 (905) 292-15-30

perevoznyebani@yandex.ru

Вам могут понравиться эти проекты

Цена по запросу
Цена по запросу
© Проект является интеллектуальной собственностью и охраняется законом об авторском праве. Свидетельство №019-009093-90-93
Цена по запросу
Можно повторить Этот объект изготовлен для выставочной площадки и был продан. Можно заказать точно такой же, а также внести любые изменения.