
Финские бани «Суоми»
Бани в скандинавском стиле «Суоми» – это технологичные материалы (планкен, термированная древесина, металлические панели) в сочетании со стильным дизайном и панорамным остеклением.
Бани в скандинавском стиле «Суоми» – это технологичные материалы (планкен, термированная древесина, металлические панели) в сочетании со стильным дизайном и панорамным остеклением.








Финны знают толк в бане. Именно их традиции вдохновили меня когда-то на создание линейки круглых бань. И вот в поисках новых идей не так давно набрел на финский сайт. Увидел там подобный проект, примерил его к нашим реалиям, нарисовал чертеж — и вот перед вами новый проект финской бани под названием «Суоми»!
Сборка: каркасная из сухой доски 42 мм, в основании брус 140х190.
Тип: стационарная, перевозная.
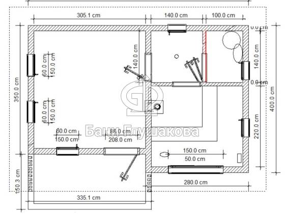
Размерный ряд: 2х5,7, 2,5х5,7, 3х5,7 м.
Комплектация: под ключ с установкой печи, душа, доставкой и монтажом.
Цвета: любые из линейки Pinotex и БиоТекс.
В зависимости от размеров бани сборка осуществляется либо в заводских условиях, либо на участке клиента.
Срок строительства 5-8 дней.