Рязань
г. Рязань, улица Маяковского, 49

Дома и бани «Барнхаус»

Строительство домов и бань в амбарном стиле «Барнхаус» теперь и в нашей компании! Проекты легко адаптируются для постройки жилых коттеджей, дач и гостевых домиков с баней под одной крышей. Каркасная технология с утеплением от 150 до 250 мм позволяет построить объект любой площади. Работаем по всей территории ЦЗФО и СЗФО. Другие регионы по договорённости.

Количество проектов: 21
Сортировать: по умолчанию по умолчанию цена цена последние последние
от 1 064 000 ₽
Акция © Проект является интеллектуальной собственностью и охраняется законом об авторском праве. Свидетельство №019-009093-90-93
от 1 175 300 ₽
© Проект является интеллектуальной собственностью и охраняется законом об авторском праве. Свидетельство №019-009093-90-93
от 1 268 400 ₽
Акция © Проект является интеллектуальной собственностью и охраняется законом об авторском праве. Свидетельство №019-009093-90-93
от 1 381 200 ₽
© Проект является интеллектуальной собственностью и охраняется законом об авторском праве. Свидетельство №019-009093-90-93
Цена по запросу

Отзывы клиентов

Что говорят клиенты о наших барнхаусах? Не холодно ли в них зимой? Как себя чувствуют бани в стиле барн после нескольких лет эксплуатации? Обо всём этом рассказывают наши Заказчики в своих видеообзорах. Больше реальных отзывов в нашей группе ВКонтакте.

Барнхаус 3
Барнхаус 2
Барнхаус 1
Смотреть все отзывы

Современный БАРНХАУС под ключ

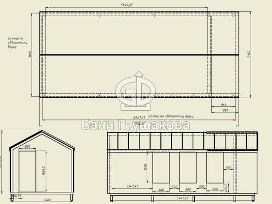
Мы позиционируем линейку для строительства бань, но по факту нет разницы — с тем же успехом можно построить дом (это даже проще). Размеры, планировка, внешний вид — всё условно и вариабельно. Как вам нравится, так и сделаем. Вместе с вами посидим над проектом и подгоним все размеры.

Принципиальные особенности нашего проекта (обшивка, окна) показываем в видео.

Как мы адаптируем проект под желания Заказчика

Базовые проекты бань даже самых крутых и сложных линеек вроде Барнхаус» — это всего лишь концепция, форма, основа, с которыми мы можем работать дальше.

Практикуем, так сказать, индивидуальный подход не на словах, а на деле. То есть буквально для каждого Заказчика создаётся свой уникальный 3D проект, в котором можно «поиграть» с размерами, планировкой, расстановкой мебели, цветовыми решениями.

Конечно, стараемся вписать в проект все пожелания, если они вписываются в конструкционные особенности объекта. Ещё на берегу рассказываем, что получится на финише.

Пример такой адаптации на видео: