Рязань
г. Рязань, улица Маяковского, 49

Перевозная баня 6м из бруса эконом варианта

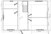
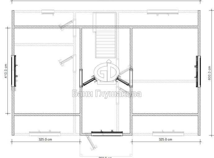
Размеры: 2,3х6 м
Площадь: 13.8 кв.м
Цена по запросу
Обсудить проект

Описание проекта

Здравствуйте, уважаемые посетители сайта, я Дмитрий Глушаков на этой странице хочу показать несколько работ перевозных бань эконом класса. Цель продать как можно больше таких бань у меня не стоит. Я не буду никого уговаривать сделать заказ на эту перевозную баню из профилированного бруса естественной влажности, я просто раскрою глаза тем, кого интересуют только цены и рисованные картинки продаваемой бани в интернете.

Подробнее

Здесь на фото довольно подробно показано, как мы делаем эти брусовые бани: это отдельное производство, не относящееся к другим баням на этом сайте. Расположено оно в другом месте, изготавливается другими людьми, но все-таки я имею к этому непосредственное отношение и гарантирую качество, красоту.

Если вы хотите хорошую перевозную баню до 200 000 руб, то вы ее можете получить в таком исполнении как у нас на фото. Если вы хотите получить баню из Пестово вслепую, без гарантии и примерно за 150 000 руб, то вы можете также написать нам на perevoznyebani@yandex.ru, я вышлю вам фото и видео работ моих приятелей, друзей из Пестово, вы выберите подходящего производителя, но с исполнением, скажем так, чуть попроще. Но это будет также какой-то гарантией качества с моей стороны, но под другим брендом «сделано в Пестово».

А вот что вы можете видеть в наших банях — все это может быть посчитано от минимальной цены до уровня 300 000 руб:
  1. Брус сырой, сухой, клееный, кедровый
  2. двери нашего производства елка, осина, кедр, стеклянные матовые или прозрачные или металлические (входные)
  3. печи — от тех, что ставят в Пестово, до любой заказной и редкой
  4. дымоход как из нержавейки с выходом в стену, так и через крышу сэндвич-трубами
  5. душевой поддон: от обычного эмалированного до пластикового короба во весь пол помывочной с трапиками
  6. покраска бани: от БиоТекса до Tikkurila
  7. кровля: от оцинкованного металла до мягкой битумной
  8. окна: от настоящих деревянных стеклопакетов до пластиковых (тут, к сожалению, совсем примитивных окон из «досок» не держим )
  9. мебель в комнате отдыха как сделанную из подручных материалов, так и фабричные комплекты
  10. установка душевого оборудования, насоса, бойлера, смесителя и душа
  11. эксклюзивную проводку
  12. обшивка: вагонка осина от класса с сучками до безсучковой элитной

Да, это все выглядит заманчиво, красиво и дорого, но помните что я, Дмитрий Глушаков, могу вам предложить как одну из своих работ, так и выступить гарантом в покупке бани из Пестово.

PS: Умеющим читать, а не высматривать цифры и цветные рисованные картинки на сайте, надеюсь, я помог. Удачи в вашем нелегком выборе.
С уважением Дмитрий Глушаков.


Комплектации и цены

Стоимость объекта зависит, главным образом, от выбранного материала. Здесь приведены цены на базовую (стандартную без дополнительных опций) комплектацию в разных исполнениях.

Поможем с расчётами и выбором

Требуется подробная консультация? Свяжитесь с нашими менеджерами. Мы подготовим индивидуальную смету, уточним сроки изготовления и проконсультируем по доставке в ваш регион. Ваша баня начинается с простого разговора!

Олег Замятин

Менеджер выставки «Мега»

Выставка «Мега» расположена по адресу:

г. С.-Петербург, Мурманское ш. 1, 12-ый км, ТЦ МЕГА на Дыбенко (эксподом №17А)

Открыто ПН, ВТ, СР, ЧТ, СБ, ВС с 9:00 до 18:00. ПТ — выходной

Визит только по предварительной договорённости с менеджером!

+7 (962) 680-36-27

perevoznyebani@yandex.ru

Сергей Суслов

Менеджер выставки «Маяк»

Выставка «Маяк» расположена по адресу:

г. В.Новгород, ул. Державина, 21А

Открыто Вт, Ср, Чт, Пт и Сб с 10 до 19 в офисе. Пн и Вс выходные.

Визит только по предварительной договорённости с менеджером!

+7 (905) 292-15-30

perevoznyebani@yandex.ru

Вам могут понравиться эти проекты

Цена по запросу
Цена по запросу
© Проект является интеллектуальной собственностью и охраняется законом об авторском праве. Свидетельство №019-009093-90-93