Рязань
г. Рязань, улица Маяковского, 49

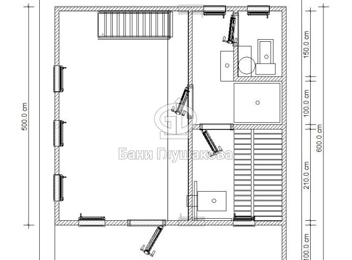
Проект двухэтажной каркасной бани «Бурже» 6х5,3м

Размеры: 6х5,3 м
Площадь: 42 кв.м
Доступно в кредит Теперь у нас можно оформить кредит на баню — мы заключили сотрудничество с «Почта Банком». Перейти к расчёту кредита
Подробнее
Цена под ключ Цена указана за базовую комплектацию
от 2 280 600 ₽
Цена актуальна. Выгружена из 1С 30.05.2026
Обсудить проект

Описание проекта

Апрель 2020 — продуктивный период самоизоляции.

Подробнее

Рады представить вам новый проект в линейке «Бурже» — двухэтажная баня в современном стиле, которая может заменить дачный или гостевой домик на вашем загородном участке.

Внешне дизайн выполнен в узнаваемом стиле баня «Бурже»: всё та же округлая крыша, небольшая терраса, закрытая с одного края, большие окна. Но всё самое интересное спряталось внутри. Мы назвали эту баню двухэтажной, но она скорее двухуровневая (со вторым светом) — сверху под уютной крышей мы расположили симпатичную спаленку. Лестницу старались сделать удобной, но чтобы она не казалась громоздкой и не занимала много места.

Не считая спальни, в бане есть еще 4 помещения: комната отдыха, сауна, моечное отделение с душем и санузел, где прячется бойлер.

Чтобы вам было легче представить, как выглядит новенькая «Бурже», мы сделали фото-визуализации с примерной расстановкой мебели. Парная, душ и санузел будут сделаны в традиционном стиле бань Глушакова.

Пока это только концепт, но мы уверены, что скоро кто-нибудь закажет строительство бани под ключ по этому проекту. Такую можно построить как по каркасной технологии, так и из клееного или сухого бруса. Обращайтесь, узнавайте подробности у менеджера — вместе сможем воплотить этот проект в прекрасную реальность.

Опции объекта на фото

  • есть спальное место
  • авторский проект
  • душевая система
  • терраса
  • панорамные окна
  • бойлерная
  • выносная топка
  • топка с панорамным стеклом
  • санузел
  • светильники в парной
  • стеклянная дверь в парную
  • стеклопакеты
  • двухуровневые пологи
  • округлая крыша
  • улучшенная планировка
  • кровля Технониколь Shinglas
  • свайный фундамент
  • цвет: на выбор

* Внимание! В характеристиках и опциях указана нестандартная комплектация бани. Вы можете заказать повтор или выбрать доп.опции для формирования собственной комплектации.

Комплектации и цены

Стоимость объекта зависит, главным образом, от выбранного материала. Здесь приведены цены на базовую (стандартную без дополнительных опций) комплектацию в разных исполнениях.

Буханочка Бурже Доска в нахлест с душем
 
от 2 280 600 ₽
Бурже из бруса 140х140 сухая елка с компенсационными пропилами
 
Уточняйте
Бурже из бруса 140х140 сухой кедр с компенсационными пропилами
 
Уточняйте
Бурже из бруса 140х140 клееный брус елки(сосны)
 
Уточняйте
Бурже из бруса 140х140 клееный брус Кедра
 
Уточняйте

В базовую комплектацию входят:

Общая комплектация

Лучший способ понять, какие бани мы строим и как они выглядят изнутри — заглянуть в нашу Галерею выполненных работ. Там собраны реальные объекты, по которым сразу виден уровень исполнения и детали отделки.

Раньше мы публиковали подробные списки комплектующих под каждым проектом, но со временем поняли, что это только путает. Одинаковые с виду бани могут сильно отличаться по «начинке» под конкретные задачи заказчика. Чтобы не вводить вас в заблуждение общими цифрами, мы перешли на индивидуальные расчеты.

Просто напишите нашему менеджеру — он подготовит актуальную смету именно под ваш запрос, где будет прозрачно расписано, что входит в стоимость, а на чем можно сэкономить или, наоборот, усилить.

Рассрочка

Для жителей Новгородской области и Великого Новгорода, и других регионов, доступна беспроцентная рассрочка на полгода при первоначальном взносе 50%.

Только при условии личного обращения в наш офис. Дистанционно оформить нельзя. Предложение не суммируется с другими акциями.

Подробности уточняйте у Менеджеров.

Обвязка

Делается из ряда досок, из трех штук высотой 145 мм, толщина в три доски, общая ширина 140-150мм

Доска в нахлест

Сухая, строганная, покрашенная и только потом установленная доска внахлест одна на другую, (если это баня «Барн», то обшивается имитацией бруса), если баня «Кубота», то планкеном.

Печь KOSTЁR DS Rain 16K

Печь с парогенератором KOSTЁR DS_Rain16К, мы сделали тест-драйв и записали видеообзор на «Костёр» RAIN.
Сделана из котловой стали 4 мм, верхние элементы из нержавеющей стали что делает печь практически не убиваемой

Отделка имитацией и металлом

Отделка бани имитацией под наклоном 45 градусов, под окнами и над ними делаются металлические вставки как на наших барнах, посмотреть барны можете по ссылке каталог барнов.
Видео в котором я рассказываю и показываю как будет выглядеть баня Бурже смотрите по ссылке.

Пологи сорт А

Доска для пологов и трапиков из осиновой вагонки сорта «А» (идеальная бессучковая доска).

Электропроводка

Входит в стоимость. Включает светильники в каждом помещении, вводный автомат, негорючий провод в парную, розетка в комнате отдыха (в банях-бочках розетка устанавливается по требованию).

Покраска бани снаружи

В два слоя.

Межкомнатные двери

Внутренние двери стеклянные сатин матовый (мы делаем двери на заказ толщиной 8мм, а не 6 как большинство, уж очень они хлипкие из 6мм)

Кровля

Мягкая битумная кровля фирмы «Технониколь» SHINGLAS серии «Финская». Цвета: красно-коричневый, коричневый, зеленый, темно серая

Лунная терраса

Мы добавили в возможности отделки наших каркасных бань «Бурже» и «Буханочка» уникальный элемент — Лунную террасу. Её главная особенность в изящных арочных выемках по бокам, которые создают футуристичный и при этом очень уютный силуэт.

Такая терраса не только защищает входную зону от осадков, но и превращает баню в настоящий арт-объект на вашем участке. Если вам хочется уйти от стандартных прямоугольных форм и добавить архитектуре легкости, обязательно уточните возможность установки лунной террасы при расчете проекта у наших менеджеров.

Пример бани с такой террасой можно посмотреть здесь.

Вентиляционный клапан

Новая уникальная вентиляция нашей разработки или старинный поворотный деревянный клапан, смотрите фото и видео перейдя по ссылке

Мебель в баню

Массивная мебель нашего производства, основа из фанеры, верх из массива, стол и две скамейки, есть табуреты но их нужно оговаривать отдельно.

Вентиляция

В парной в верхней части делается задвижка для вентиляции, снаружи ставится декоративная решётка.

Дверь входная

Пластиковый белый стеклопакет, застекленный или глухой не имеет значение, на выбор расположение секций, замок с ключом входит в стоимость, размер по коробке 1800*800

Окна

Глухие (не открывающиеся) окна с однокамерным стеклопакетом 1500*570 в деревянной раме, одно окно открывается размером 900х570 или 1500х570

Дымоход

Дымоходы из нержавеющей стали 0,8 мм, трубы сендвичи

Душевое оборудование

Сделано полностью готовое душевое решение из бака, бойлера, насоса, смесителя и душа, поддон в душевой, смотрите видео

Душевой поддон

Установлен в помывочном отделении пластиковый герметичный поддон с сифоном для слива воды, в него вложен деревянный трапик (в планировках, где подразумевается душевое помещение). Ссылка на фото и видео

Стены парной

Из осиновой вагонки А класса (бессучковая)

Доска половая

Монтируем пол из сухой шпунтованной доски 28мм толщиной

Дополнительно можно заказать (опции)

Эти опции не входят в стандартную комплектацию. Они существенно повышают комфорт, но не являются обязательными. Хотите чуть больше роскоши и уюта? Смело добавляйте эти приятности к заказу!

Люстра «Звездочет»

Можно заказать такую люстру вместе с баней. Ссылка на страницу где размещена цена и все фото.

Баста-Димаста

Вентиляция в бане, которая сделает нахождение в парной более комфортным, ссылка на видео и второе видео в новой бане бочке. Подробнее тут.

Басту

Вентиляция баста, смотрите цену, фото и видео, но уже ставим нашу компактную Димасту, Вентиляция в бане которая сделает нахождение в парной более комфортным, ссылка на видео и второе видео у новой бане бочке

Доставка

Рассчитывается индивидуально

Вешалка "Спилы" №4

Вешалка в баню, очень красивый вариант, сделает баню уютнее ссылка на все фото и видео

Сетка каменка

Дополнительное место под камни которые также хорошо нагреются как и в печи и будут аккумулировать тепло, смотрите мой видео обзор и уже можно заказать каменку из нержавейки нашего производства. видео по ссылке

Бак на трубе

Для горячей воды, самоварного типа, устанавливается над печью на трубе, объём 55 л. , видео о пользе бака на трубе, мое мнение

Лунная терраса

Мы добавили в возможности отделки наших каркасных бань «Бурже» и «Буханочка» уникальный элемент — Лунную террасу. Её главная особенность в изящных арочных выемках по бокам, которые создают футуристичный и при этом очень уютный силуэт.

Такая терраса не только защищает входную зону от осадков, но и превращает баню в настоящий арт-объект на вашем участке. Если вам хочется уйти от стандартных прямоугольных форм и добавить архитектуре легкости, обязательно уточните возможность установки лунной террасы при расчете проекта у наших менеджеров.

Пример бани с такой террасой можно посмотреть здесь.

Осиновая термовагонка в парной

У нас появилась новая опция: теперь можно заказать отделку парной осиновой термовагонкой. Как это выглядит на видео.

Термированная доска – это дерево, которое подвергается обработке высокой температурой в специальной камере. В результате из дерева испаряются все сахара и смолы, поры запаиваются и получается материал, который практически не впитывает воду.

Для мокрых помещений это просто идеально!

Приточная вентиляция у печи

Вентиляция такого типа затягивает воздух в зольник, помогая в растопке и поддержания горения дров. Подробнее в видео.

Печь с закрытой каменкой «ГИД 4»

Печь оснащена внутренней закрытой ёмкостью, куда закладываются камни. Это позволяет нагревать камни до 400-500С. Тогда получается мелкодисперсный перегретый пар, который легко переносится и не так экстремально повышает влажность в парной. Подробнее о моделе.

Такую печь за дополнительную стоимость можно установить в практически любую баню. Пожалуйста, ознакомьтесь с видео.

Люстра квадратная «Капли»со стеклом

Можно заказать такую люстру вместе с баней. Фото и описание люстры «Капли».

Пологи из ольхи

Можно заказать в парной пологи из ольхи. Эта древесина обладает низкой теплопроводностью, а значит при соприкосновении с кожей не будет ожога. Подробнее в видео.

Светильники на террасу или дорожку

Можно заказать светильник нашего производства для террас или дорожек, Ссылка на фото и видео и цену

Обливное устройство

Можно заказать установку обливного устройства «Водопад» в помывочное помещение, фото видео и стоимость смотрите по ссылке

Откидная скамеечка в помывочной

В помывочном помещении для удобства можно сделать откидную скамеечку, фото и видео на странице по ссылке

Дверь металлическая

Посмотреть пример установленной двери можно по ссылке

Диодная подсветка в парной

Можно сделать в парной диодной освещение лентой, в спинке или под пологами, ссылка на фото и видео

Печь топкой на улицу

Печь сделать топкой на улицу можно с утепленным экраном, цена, фото, видео по ссылке

Вентиляция в душевой

Советуем ставить в душевом помещении вентиляционный клапан, смотрите видео с моим опытом

Приточная вентиляция Второе дыхание

Приточная вентиляция для тех кто любит парится лежа,фото и видео

Приточная вентиляция под печью

Делается под печью для получения свежего воздуха в парной под печью, ссылка на видео

Пологи без ножек

Можно заказать изготовление пологов как нижних так и верхних без опорных ножек по середине, нижний полок можно сделать без ножек в большинстве случаев, а верхний полок без ножет делается только в вариантах когда нижний полок удлинен до стены. ссылка на видео или перейдите на страницу с фото, видео и подробным описанием этой услуги.

Поддон во всю парную

Можно и нужно заказать в парной пластиковый пол во всю парную с деревянными трапиками, Ссылка на фото и видео

Дверь ПВХ Усиленная

Наиболее хороший и долговечный вариант двери, включает уже полноценный замок с ручкой, потребуется доплата, точнее стоимость можно у знать у менеджера. Ссылка на фото и видео двери

Панно из можжевельника

В парной можно установить панно из можжевельника как на видеоссылка на страницу с фото

Рисунок между полками

Расстояние между полками можно сделать с орнаментом из тех же досок что и пологи, подробно посмотрите перейдя по ссылке

Спинка в парной

Установить удобную и красивую спинку в парной, фото и видео на странице по ссылке

Светильник "Тринити"

Можно установить светильник потолочный в комнате отдыха, ссылка на все фото тут, помещается в бани бочки увеличенного диаметра, в Буханочки и Бурже, беседки

Светильник потолочный

Установить на потолок в комнату отдыха светильник под названием "Желтый квадрат", посмотреть его можно по ссылке или на видео

Обкладка экрана

Если топка через стену то можно сделать красивые наличники из брашированной доски с полочкой на верху,

Обогреватель

Можно установить конвектор на стену 1.5 квт, он будет с гарантией на момент покупки бани

Декоративные светильники

Установить красивые светильники, которые украсят вашу парную, ссылка на видео, а также можно сделать раздельное включение под полками и верхними светильниками ссылка на видео.

Камни в печку

За дополнительную плату привезем, марку и цены уточняйте у продавцов

Свайно-винтовой фундамент

Установка винтовых свай может осуществляться как нашими специалистами, так и подрядчиками — в зависимости от времени года и обстоятельств.

Поможем с расчётами и выбором

Требуется подробная консультация? Свяжитесь с нашими менеджерами. Мы подготовим индивидуальную смету, уточним сроки изготовления и проконсультируем по доставке в ваш регион. Ваша баня начинается с простого разговора!

Олег Замятин

Менеджер выставки «Мега»

Выставка «Мега» расположена по адресу:

г. С.-Петербург, Мурманское ш. 1, 12-ый км, ТЦ МЕГА на Дыбенко (эксподом №17А)

Открыто ПН, ВТ, СР, ЧТ, СБ, ВС с 9:00 до 18:00. ПТ — выходной

Визит только по предварительной договорённости с менеджером!

+7 (962) 680-36-27

perevoznyebani@yandex.ru

Сергей Суслов

Менеджер выставки «Маяк»

Выставка «Маяк» расположена по адресу:

г. В.Новгород, ул. Державина, 21А

Открыто Вт, Ср, Чт, Пт и Сб с 10 до 19 в офисе. Пн и Вс выходные.

Визит только по предварительной договорённости с менеджером!

+7 (905) 292-15-30

perevoznyebani@yandex.ru

Вам могут понравиться эти проекты

Цена по запросу
Цена по запросу
Цена по запросу