Рязань
г. Рязань, улица Маяковского, 49

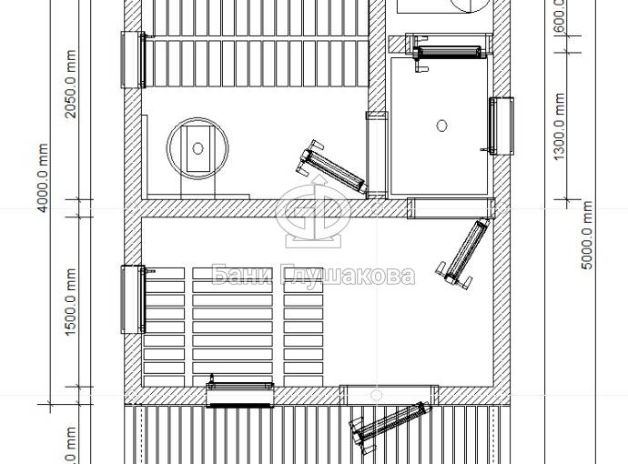
Баня из бруса «Буханочка» в ласточкин хвост 3,4х5

Размеры: 3,4х5 м
Площадь: 17 кв.м
Цена по запросу
Обсудить проект

Описание проекта

Обратите внимание: Баня спроектирована так, что она не может быть построена с какими-либо конструкционными изменениями! Размер строго 3,4х5 метров.

Подробнее

Возможно строительство только из сухого бруса камерной сушки или клееного бруса сечением 140х140 мм. Ёлка (сосна) или кедр опционально. Углы этой бани собираются в «ласточкин хвост». Это герметичное и надёжно соединение, которое определённо стоит своих денег. Подробнее о нём узнаете из нашего видео.

Размеры на плане — это размеры по брусу. Размеры парной и душевой комнаты будут меньше на 60 мм из-за того, что будет контр-обрешётка по стенам и обшивка вагонкой изнутри — ну то есть несколько сантиметров площади неизбежно «съедятся».

Планировка на 4 отделения: комната отдыха, парная, душевая комната и бойлерная.

Указаны актуальные цены за строительство бани в описанной ниже комплектации.

Опции объекта на фото

  • из сухого бурса
  • рубка в «ласточкин хвост»
  • выносная топка
  • топка с панорамным стеклом
  • светильники в парной
  • уличное освещение
  • красивая спинка полога
  • душевая система
  • стеклянная дверь в парную
  • комплект мебели
  • двухуровневые пологи
  • округлая крыша
  • подсветка нижнего полога
  • дверь «Корабельная»
  • индивидуальный размер
  • авторский проект
  • сухой брус камерной сушки
  • кровля Технониколь Shinglas
  • парная+моечная+предбанник
  • цвет на выбор

* Внимание! В характеристиках и опциях указана нестандартная комплектация бани. Вы можете заказать повтор или выбрать доп.опции для формирования собственной комплектации.

Комплектации и цены

Стоимость объекта зависит, главным образом, от выбранного материала. Здесь приведены цены на базовую (стандартную без дополнительных опций) комплектацию в разных исполнениях.

Буханочка из бруса Сухая елка (сосна) 140х140
 
Уточняйте
Буханочка сухой брус с душем, негабарит
 
1 228 000 ₽
Буханочка из Клееного бруса елка (сосна) 140х140
 
Уточняйте
Буханочка из Клееного бруса кедра 140х140
 
Уточняйте

В базовую комплектацию входят:

Общая комплектация

Лучший способ понять, какие бани мы строим и как они выглядят изнутри — заглянуть в нашу Галерею выполненных работ. Там собраны реальные объекты, по которым сразу виден уровень исполнения и детали отделки.

Раньше мы публиковали подробные списки комплектующих под каждым проектом, но со временем поняли, что это только путает. Одинаковые с виду бани могут сильно отличаться по «начинке» под конкретные задачи заказчика. Чтобы не вводить вас в заблуждение общими цифрами, мы перешли на индивидуальные расчеты.

Просто напишите нашему менеджеру — он подготовит актуальную смету именно под ваш запрос, где будет прозрачно расписано, что входит в стоимость, а на чем можно сэкономить или, наоборот, усилить.

Угол Ласточкин хвост

Угол в бане делается по старинному методу теплого и надежного угла Ласточкин хвост.

Брус стен и перегородок

Стены и перегородки сделаны из сухого (подсушенного) профилированного бруса с компенсационными пропилами, брус 140х140. Брус 140х140 высушить невозможно, поэтому я пишу подсушенный.

Рассрочка

Для жителей Новгородской области и Великого Новгорода, и других регионов, доступна беспроцентная рассрочка на полгода при первоначальном взносе 50%.

Только при условии личного обращения в наш офис. Дистанционно оформить нельзя. Предложение не суммируется с другими акциями.

Подробности уточняйте у Менеджеров.

Печь KOSTЁR DS Rain 16K

Печь с парогенератором KOSTЁR DS_Rain16К, мы сделали тест-драйв и записали видеообзор на «Костёр» RAIN.
Сделана из котловой стали 4 мм, верхние элементы из нержавеющей стали что делает печь практически не убиваемой

Профиль бруса

Строим из профилированного бруса, профиль с «наплывом» — то есть щелей видно не будет, посмотрите видео и новое расширенное видео, сравните с видео обычного бруса.

Пологи сорт А

Доска для пологов и трапиков из осиновой вагонки сорта «А» (идеальная бессучковая доска).

Электропроводка

Входит в стоимость. Включает светильники в каждом помещении, вводный автомат, негорючий провод в парную, розетка в комнате отдыха (в банях-бочках розетка устанавливается по требованию).

Межкомнатные двери

Внутренние двери стеклянные сатин матовый (мы делаем двери на заказ толщиной 8мм, а не 6 как большинство, уж очень они хлипкие из 6мм)

Кровля

Мягкая битумная кровля фирмы «Технониколь» SHINGLAS серии «Финская». Цвета: красно-коричневый, коричневый, зеленый, темно серая

Вентиляционный клапан

Новая уникальная вентиляция нашей разработки или старинный поворотный деревянный клапан, смотрите фото и видео перейдя по ссылке

Свесы кровли

Свесы кровли по 30 см во всех 4х сторон, это делает баню более привлекательной. А крышу более функциональной.

Сборка бруса

Предварительно в верхнем брусе сверлится отверстие, вставляется гвоздь, в нижний брус гвоздь забивается прижимая брус. Подробнее на видео по ссылке. Между рядами прокладывается джут.

Утеплитель

На полу в комнате отдыха, потолке везде лежит минеральная вата толщиной 100мм.
В душевой и парной на полу засыпан керамзит.

Дверь входная

Входная дверь деревянная с врезным замком

Ройки

На двери и окна впиливаются ройки 50х50 и к ним прикручивается доборная планка 20х140

Вентиляционные клапаны

В парной устанавливаются два клапана для вентиляции, один у печи внизу, один в верху.

Обвязочный брус и лаги

Обвязка из бруса 150х150 и лаги из доски 40х150

Печь

Костер Рейн 16 ссылка на сайт, Видео печи в нашей бане и мое рассуждение, смотреть видео. Ссылка на страницу с фото этой печи в нашей бане.

Пологи без ножек

Для удобства использования трапиков в парной, пологи делаются без ножек и нижний ярус пологов удлиненный до стены. Ссылка на видео или перейдите на страницу с фото

Поддон в парной и помывочной

В парной и помывочной устанавливается душевой поддон пластиковый, стены обшиты вагонкой которая находит на поддон тем самым герметизирует помещение и можно не бояться попадания воды под пол.
Сделаны подъемные трапики из хвойных пород. И там и там сделан слив на улицу.

Покраска бани

В стоимость входит покраска бани снаружи на два слоя пропиткой Акватекс, но при технической возможности, то есть если нет морозов. Брус не можем красить в теплом цеху, покраска только после сборки.

Мебель в баню

Массивная мебель нашего производства, основа из фанеры, верх из массива, стол и две скамейки, есть табуреты но их нужно оговаривать отдельно.

Душевое оборудование

Сделано полностью готовое душевое решение из бака, бойлера, насоса, смесителя и душа, поддон в душевой, смотрите видео

Стены парной

Из осиновой вагонки А класса (бессучковая)

Окна

Деревянные окна: настоящие деревянные стеклопакеты заводского качества с хорошей фурнитурой. ссылка на видео

Доска половая

Монтируем пол из сухой шпунтованной доски 28мм толщиной

Дополнительно можно заказать (опции)

Эти опции не входят в стандартную комплектацию. Они существенно повышают комфорт, но не являются обязательными. Хотите чуть больше роскоши и уюта? Смело добавляйте эти приятности к заказу!

Баста-Димаста

Вентиляция в бане, которая сделает нахождение в парной более комфортным, ссылка на видео и второе видео в новой бане бочке. Подробнее тут.

Басту

Вентиляция баста, смотрите цену, фото и видео, но уже ставим нашу компактную Димасту, Вентиляция в бане которая сделает нахождение в парной более комфортным, ссылка на видео и второе видео у новой бане бочке

Доставка

Рассчитывается индивидуально

Вешалка "Спилы" №4

Вешалка в баню, очень красивый вариант, сделает баню уютнее ссылка на все фото и видео

Сетка каменка

Дополнительное место под камни которые также хорошо нагреются как и в печи и будут аккумулировать тепло, смотрите мой видео обзор и уже можно заказать каменку из нержавейки нашего производства. видео по ссылке

Бак на трубе

Для горячей воды, самоварного типа, устанавливается над печью на трубе, объём 55 л. , видео о пользе бака на трубе, мое мнение

Осиновая термовагонка в парной

У нас появилась новая опция: теперь можно заказать отделку парной осиновой термовагонкой. Как это выглядит на видео.

Термированная доска – это дерево, которое подвергается обработке высокой температурой в специальной камере. В результате из дерева испаряются все сахара и смолы, поры запаиваются и получается материал, который практически не впитывает воду.

Для мокрых помещений это просто идеально!

Печь с закрытой каменкой «ГИД 4»

Печь оснащена внутренней закрытой ёмкостью, куда закладываются камни. Это позволяет нагревать камни до 400-500С. Тогда получается мелкодисперсный перегретый пар, который легко переносится и не так экстремально повышает влажность в парной. Подробнее о моделе.

Такую печь за дополнительную стоимость можно установить в практически любую баню. Пожалуйста, ознакомьтесь с видео.

Люстра квадратная «Капли»со стеклом

Можно заказать такую люстру вместе с баней. Фото и описание люстры «Капли».

Пологи из ольхи

Можно заказать в парной пологи из ольхи. Эта древесина обладает низкой теплопроводностью, а значит при соприкосновении с кожей не будет ожога. Подробнее в видео.

Светильники на террасу или дорожку

Можно заказать светильник нашего производства для террас или дорожек, Ссылка на фото и видео и цену

Обливное устройство

Можно заказать установку обливного устройства «Водопад» в помывочное помещение, фото видео и стоимость смотрите по ссылке

Дверь металлическая

Посмотреть пример установленной двери можно по ссылке

Дровяник

Можно сделать баню с дровяником 0.5м с одной или двух сторон бани, смотрите более подробно как это выглядит на отдельной странице

Диодная подсветка в парной

Можно сделать в парной диодной освещение лентой, в спинке или под пологами, ссылка на фото и видео

Печь топкой на улицу

Печь сделать топкой на улицу можно с утепленным экраном, цена, фото, видео по ссылке

Вентиляция в душевой

Советуем ставить в душевом помещении вентиляционный клапан, смотрите видео с моим опытом

Приточная вентиляция Второе дыхание

Приточная вентиляция для тех кто любит парится лежа,фото и видео

Приточная вентиляция под печью

Делается под печью для получения свежего воздуха в парной под печью, ссылка на видео

Панно из можжевельника

В парной можно установить панно из можжевельника как на видеоссылка на страницу с фото

Спинка в парной

Установить удобную и красивую спинку в парной, фото и видео на странице по ссылке

Светильник "Тринити"

Можно установить светильник потолочный в комнате отдыха, ссылка на все фото тут, помещается в бани бочки увеличенного диаметра, в Буханочки и Бурже, беседки

Декоративные светильники

Установить красивые светильники, которые украсят вашу парную, ссылка на видео, а также можно сделать раздельное включение под полками и верхними светильниками ссылка на видео.

Камни в печку

За дополнительную плату привезем, марку и цены уточняйте у продавцов

Винтовые сваи

Устанавливаются сваи по желанию заказчика: 76е, 89, или 108е. Так же, где требуется, устанавливается швеллер.

Поможем с расчётами и выбором

Требуется подробная консультация? Свяжитесь с нашими менеджерами. Мы подготовим индивидуальную смету, уточним сроки изготовления и проконсультируем по доставке в ваш регион. Ваша баня начинается с простого разговора!

Олег Замятин

Менеджер выставки «Мега»

Выставка «Мега» расположена по адресу:

г. С.-Петербург, Мурманское ш. 1, 12-ый км, ТЦ МЕГА на Дыбенко (эксподом №17А)

Открыто ПН, ВТ, СР, ЧТ, СБ, ВС с 9:00 до 18:00. ПТ — выходной

Визит только по предварительной договорённости с менеджером!

+7 (962) 680-36-27

perevoznyebani@yandex.ru

Сергей Суслов

Менеджер выставки «Маяк»

Выставка «Маяк» расположена по адресу:

г. В.Новгород, ул. Державина, 21А

Открыто Вт, Ср, Чт, Пт и Сб с 10 до 19 в офисе. Пн и Вс выходные.

Визит только по предварительной договорённости с менеджером!

+7 (905) 292-15-30

perevoznyebani@yandex.ru

Вам могут понравиться эти проекты