Рязань
г. Рязань, улица Маяковского, 49

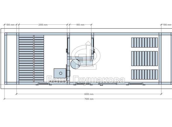
Баня «Буханочка» 7 метров с дровяниками

Размеры: 2,15х7 м
Площадь: 15 кв.м
Доступно в кредит Теперь у нас можно оформить кредит на баню — мы заключили сотрудничество с «Почта Банком». Перейти к расчёту кредита
Подробнее
© Проект является интеллектуальной собственностью и охраняется законом об авторском праве. Свидетельство №019-009093-90-93
Цена под ключ Цена указана за базовую комплектацию
от 924 400 ₽
Цена актуальна. Выгружена из 1С 30.05.2026
Обсудить проект

Описание проекта

Представляем усовершенствованный проект перевозной бани «Буханочка» с двумя дровяниками в виде пристройки сбоку.

Подробнее

По основанию длина бани 7 метров, то есть дровяники как бы нарощены по сторонам —размер внутренних помещений не пострадал. Отдельное место под дрова лишним точно не будет. Пол, кстати, специально сделан с просветами: даже если дождь или снег замочит, то вся вода уйдёт без проблем. Гнить не будет. Снаружи баня покрашена Тиккурилой для фасадных работ. Краска стоит своих денег — обновлять нужно будет раз в 5 лет.

Планировка стандартная: три помещения (комната отдыха, душевая, парная.

В парной небольшое новшество — сделали выдвигающийся нижний полог. Да, такой не зашит красивой спинкой, зато убираться намного проще. Ножек у полога тоже нет.

Поставили отличную мощную печь RAIN фирмы Kostёr. Жар будет великолепный.

Опции объекта на фото

  • из доски внахлёст
  • выносная топка
  • дровяник
  • светильники в парной
  • уличное освещение
  • красивая спинка полога
  • душевая система
  • стеклянная дверь в парную
  • комплект мебели
  • двухуровневые пологи
  • округлая крыша
  • подсветка нижнего полога
  • индивидуальный размер
  • выставочный образец
  • авторский проект
  • кровля Технониколь Shinglas
  • парная+моечная+предбанник
  • материал: ель/сосна
  • пологи без ножек
  • выдвижной нижний полог
  • цвет: Тиккурила PIKA-TEHO TVT 559X, обводка TVT2665
  • печь: KOSTЁR DS_Rain16К

* Внимание! В характеристиках и опциях указана нестандартная комплектация бани. Вы можете заказать повтор или выбрать доп.опции для формирования собственной комплектации.

Комплектации и цены

Стоимость объекта зависит, главным образом, от выбранного материала. Здесь приведены цены на базовую (стандартную без дополнительных опций) комплектацию в разных исполнениях.

Буханочка каркасная доска внахлест с душем
 
от 924 400 ₽
Буханочка сухой брус с душем
 
1 022 700 ₽
Буханочка клееный брус с душем
 
1 083 100 ₽

В базовую комплектацию входят:

Общая комплектация

Лучший способ понять, какие бани мы строим и как они выглядят изнутри — заглянуть в нашу Галерею выполненных работ. Там собраны реальные объекты, по которым сразу виден уровень исполнения и детали отделки.

Раньше мы публиковали подробные списки комплектующих под каждым проектом, но со временем поняли, что это только путает. Одинаковые с виду бани могут сильно отличаться по «начинке» под конкретные задачи заказчика. Чтобы не вводить вас в заблуждение общими цифрами, мы перешли на индивидуальные расчеты.

Просто напишите нашему менеджеру — он подготовит актуальную смету именно под ваш запрос, где будет прозрачно расписано, что входит в стоимость, а на чем можно сэкономить или, наоборот, усилить.

Рассрочка

Для жителей Новгородской области и Великого Новгорода, и других регионов, доступна беспроцентная рассрочка на полгода при первоначальном взносе 50%.

Только при условии личного обращения в наш офис. Дистанционно оформить нельзя. Предложение не суммируется с другими акциями.

Подробности уточняйте у Менеджеров.

Доска в нахлест

Сухая, строганная, покрашенная и только потом установленная доска внахлест одна на другую, (если это баня «Барн», то обшивается имитацией бруса), если баня «Кубота», то планкеном.

Печь KOSTЁR DS Rain 16K

Печь с парогенератором KOSTЁR DS_Rain16К, мы сделали тест-драйв и записали видеообзор на «Костёр» RAIN.
Сделана из котловой стали 4 мм, верхние элементы из нержавеющей стали что делает печь практически не убиваемой

Пологи сорт А

Доска для пологов и трапиков из осиновой вагонки сорта «А» (идеальная бессучковая доска).

Электропроводка

Входит в стоимость. Включает светильники в каждом помещении, вводный автомат, негорючий провод в парную, розетка в комнате отдыха (в банях-бочках розетка устанавливается по требованию).

Покраска бани снаружи

В два слоя.

Межкомнатные двери

Внутренние двери стеклянные сатин матовый (мы делаем двери на заказ толщиной 8мм, а не 6 как большинство, уж очень они хлипкие из 6мм)

Кровля

Мягкая битумная кровля фирмы «Технониколь» SHINGLAS серии «Финская». Цвета: красно-коричневый, коричневый, зеленый, темно серая

Вентиляционный клапан

Новая уникальная вентиляция нашей разработки или старинный поворотный деревянный клапан, смотрите фото и видео перейдя по ссылке

Мебель в баню

Массивная мебель нашего производства, основа из фанеры, верх из массива, стол и две скамейки, есть табуреты но их нужно оговаривать отдельно.

Дымоход

Дымоходы из нержавеющей стали 0,8 мм, трубы сендвичи

Душевое оборудование

Сделано полностью готовое душевое решение из бака, бойлера, насоса, смесителя и душа, поддон в душевой, смотрите видео

Душевой поддон

Установлен в помывочном отделении пластиковый герметичный поддон с сифоном для слива воды, в него вложен деревянный трапик (в планировках, где подразумевается душевое помещение). Ссылка на фото и видео

Внутренние стены

Обшиты сухой вагонкой сорта «АБ» толщиной 16 мм.

Стены парной

Из осиновой вагонки А класса (бессучковая)

Окна

Деревянные окна: настоящие деревянные стеклопакеты заводского качества с хорошей фурнитурой. ссылка на видео

Доска половая

Монтируем пол из сухой шпунтованной доски 28мм толщиной

Дополнительно можно заказать (опции)

Эти опции не входят в стандартную комплектацию. Они существенно повышают комфорт, но не являются обязательными. Хотите чуть больше роскоши и уюта? Смело добавляйте эти приятности к заказу!

Люстра «Звездочет»

Можно заказать такую люстру вместе с баней. Ссылка на страницу где размещена цена и все фото.

Баста-Димаста

Вентиляция в бане, которая сделает нахождение в парной более комфортным, ссылка на видео и второе видео в новой бане бочке. Подробнее тут.

Увеличить утепление

При сборке на участке бани можно увеличить утепление, ширину, свесы кровли, смотрите проект и видео 

Басту

Вентиляция баста, смотрите цену, фото и видео, но уже ставим нашу компактную Димасту, Вентиляция в бане которая сделает нахождение в парной более комфортным, ссылка на видео и второе видео у новой бане бочке

Доставка

Рассчитывается индивидуально

Сборка на участке

Дополнительно 10% от стоимости

Вешалка "Спилы" №4

Вешалка в баню, очень красивый вариант, сделает баню уютнее ссылка на все фото и видео

Сетка каменка

Дополнительное место под камни которые также хорошо нагреются как и в печи и будут аккумулировать тепло, смотрите мой видео обзор и уже можно заказать каменку из нержавейки нашего производства. видео по ссылке

Бак на трубе

Для горячей воды, самоварного типа, устанавливается над печью на трубе, объём 55 л. , видео о пользе бака на трубе, мое мнение

Врезной замок

Стоимость установки уточняйте у менеджера

Осиновая термовагонка в парной

У нас появилась новая опция: теперь можно заказать отделку парной осиновой термовагонкой. Как это выглядит на видео.

Термированная доска – это дерево, которое подвергается обработке высокой температурой в специальной камере. В результате из дерева испаряются все сахара и смолы, поры запаиваются и получается материал, который практически не впитывает воду.

Для мокрых помещений это просто идеально!

Приточная вентиляция у печи

Вентиляция такого типа затягивает воздух в зольник, помогая в растопке и поддержания горения дров. Подробнее в видео.

Печь с закрытой каменкой «ГИД 4»

Печь оснащена внутренней закрытой ёмкостью, куда закладываются камни. Это позволяет нагревать камни до 400-500С. Тогда получается мелкодисперсный перегретый пар, который легко переносится и не так экстремально повышает влажность в парной. Подробнее о моделе.

Такую печь за дополнительную стоимость можно установить в практически любую баню. Пожалуйста, ознакомьтесь с видео.

Люстра квадратная «Капли»со стеклом

Можно заказать такую люстру вместе с баней. Фото и описание люстры «Капли».

Пологи из ольхи

Можно заказать в парной пологи из ольхи. Эта древесина обладает низкой теплопроводностью, а значит при соприкосновении с кожей не будет ожога. Подробнее в видео.

Светильники на террасу или дорожку

Можно заказать светильник нашего производства для террас или дорожек, Ссылка на фото и видео и цену

Обливное устройство

Можно заказать установку обливного устройства «Водопад» в помывочное помещение, фото видео и стоимость смотрите по ссылке

Откидная скамеечка в помывочной

В помывочном помещении для удобства можно сделать откидную скамеечку, фото и видео на странице по ссылке

Люстра "Тринити" двойная

Можно заказать такую люстру вместе с баней. Ссылка на страницу где размещены фото и видео люстры

Козырек

Можно заказать на банях которые собираются на участке установку козырька над входом, ссылка на страницу с фото и ценой

Дверь металлическая

Посмотреть пример установленной двери можно по ссылке

Дровяник

Можно сделать баню с дровяником 0.5м с одной или двух сторон бани, смотрите более подробно как это выглядит на отдельной странице

Диодная подсветка в парной

Можно сделать в парной диодной освещение лентой, в спинке или под пологами, ссылка на фото и видео

Печь топкой на улицу

Печь сделать топкой на улицу можно с утепленным экраном, цена, фото, видео по ссылке

Вентиляция в душевой

Советуем ставить в душевом помещении вентиляционный клапан, смотрите видео с моим опытом

Приточная вентиляция Второе дыхание

Приточная вентиляция для тех кто любит парится лежа,фото и видео

Приточная вентиляция под печью

Делается под печью для получения свежего воздуха в парной под печью, ссылка на видео

Пологи без ножек

Можно заказать изготовление пологов как нижних так и верхних без опорных ножек по середине, нижний полок можно сделать без ножек в большинстве случаев, а верхний полок без ножет делается только в вариантах когда нижний полок удлинен до стены. ссылка на видео или перейдите на страницу с фото, видео и подробным описанием этой услуги.

Поддон во всю парную

Можно и нужно заказать в парной пластиковый пол во всю парную с деревянными трапиками, Ссылка на фото и видео

Дверь ПВХ Усиленная

Наиболее хороший и долговечный вариант двери, включает уже полноценный замок с ручкой, потребуется доплата, точнее стоимость можно у знать у менеджера. Ссылка на фото и видео двери

Панно из можжевельника

В парной можно установить панно из можжевельника как на видеоссылка на страницу с фото

Окно высокое

Можно заказать установку окон (только в каркасные варианты) размером 1470х570, открывающиеся если замена окна то +2500р а если дополнительное окно то +5000р, пример такой бани на видео

Рисунок между полками

Расстояние между полками можно сделать с орнаментом из тех же досок что и пологи, подробно посмотрите перейдя по ссылке

Спинка в парной

Установить удобную и красивую спинку в парной, фото и видео на странице по ссылке

Светильник "Тринити"

Можно установить светильник потолочный в комнате отдыха, ссылка на все фото тут, помещается в бани бочки увеличенного диаметра, в Буханочки и Бурже, беседки

Светильник потолочный

Установить на потолок в комнату отдыха светильник под названием "Желтый квадрат", посмотреть его можно по ссылке или на видео

Обкладка экрана

Если топка через стену то можно сделать красивые наличники из брашированной доски с полочкой на верху,

Обогреватель

Можно установить конвектор на стену 1.5 квт, он будет с гарантией на момент покупки бани

Уголок скамейка со скосом

Можно в комнате отдыха сделать угловой комплект скамеек с откидными крышками, посмотреть пример перейдя по ссылке, отличие этого уголка что что для ног удобнее, сделан под углом низ.

Скамейка со спинкой

Можно заказать либо отдельно, либо поменять стандартную скамейку на эту со спинкой с доплатой за каждую скамейку, ссылка на страницу со скамейкой

Декоративные светильники

Установить красивые светильники, которые украсят вашу парную, ссылка на видео, а также можно сделать раздельное включение под полками и верхними светильниками ссылка на видео.

Камни в печку

За дополнительную плату привезем, марку и цены уточняйте у продавцов

Винтовые сваи

Устанавливаются сваи по желанию заказчика: 76е, 89, или 108е. Так же, где требуется, устанавливается швеллер.

Поможем с расчётами и выбором

Требуется подробная консультация? Свяжитесь с нашими менеджерами. Мы подготовим индивидуальную смету, уточним сроки изготовления и проконсультируем по доставке в ваш регион. Ваша баня начинается с простого разговора!

Олег Замятин

Менеджер выставки «Мега»

Выставка «Мега» расположена по адресу:

г. С.-Петербург, Мурманское ш. 1, 12-ый км, ТЦ МЕГА на Дыбенко (эксподом №17А)

Открыто ПН, ВТ, СР, ЧТ, СБ, ВС с 9:00 до 18:00. ПТ — выходной

Визит только по предварительной договорённости с менеджером!

+7 (962) 680-36-27

perevoznyebani@yandex.ru

Сергей Суслов

Менеджер выставки «Маяк»

Выставка «Маяк» расположена по адресу:

г. В.Новгород, ул. Державина, 21А

Открыто Вт, Ср, Чт, Пт и Сб с 10 до 19 в офисе. Пн и Вс выходные.

Визит только по предварительной договорённости с менеджером!

+7 (905) 292-15-30

perevoznyebani@yandex.ru

Вам могут понравиться эти проекты

Цена по запросу
© Проект является интеллектуальной собственностью и охраняется законом об авторском праве. Свидетельство №019-009093-90-93