Рязань
г. Рязань, улица Маяковского, 49

Каркасная баня «Буханочка» 6м №82500284

Размеры: 2,2х6 м
Площадь: 13,2 кв.м
Доступно в кредит Теперь у нас можно оформить кредит на баню — мы заключили сотрудничество с «Почта Банком». Перейти к расчёту кредита
Подробнее
В наличии © Проект является интеллектуальной собственностью и охраняется законом об авторском праве. Свидетельство №019-009093-90-93
Цена под ключ Цена указана за базовую комплектацию
850 000 ₽ -1,73% 865 000 ₽

Аукцион наоборот!

Стоимость снижается каждый день.
Цена на завтра 850 000 ₽

Забронировать

Описание проекта

Баня была изготовлена 14 апреля 2025 года. Повтор удачной бани «Буханочки» №82300189, которая служила офисом на площадке в Санкт-Петербурге.

Подробнее

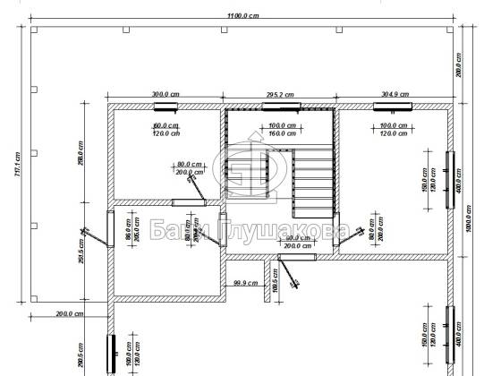
Размер 2,2 на 6 метров. Это каркасная перевозная баня «Буханочка», которая уже полностью готова к использованию. Буквально. В ней уже есть все наши фирменные улучшатели.

Внутри 3 отделения: комната отдыха (здесь комплект мебели, люстра, электрика), парная обшита термодоской (широченные полки, вентиляция «второе дыхание», печь ГИД 4 с красивым металлическим экраном с двух сторон и трёхконтурным дымоходом (который заменяет собой «Димасту»), светильники, каменка на трубе. Душевая также обшита термомодифицированной доской, сделаны металлические пороги с перфорацией и уплотнительной резинкой на стеклянной двери – никаких протечек в комнату отдыха.  Установлено автономное душевое оборудование.

Покрашена краской Escaro Veranda.

Баня находится в Великом Новгороде, доставку считаем отсюда.

Выставка «Мега» расположена по адресу:

г. С.-Петербург, Мурманское ш. 1, 12-ый км, ТЦ МЕГА на Дыбенко (эксподом №17А)

Работает ПН, ВТ, СР, ЧТ, СБ, ВС с 9:00 до 18:00. ПТ — выходной
Пожалуйста, предупредите нас о Вашем визите заранее!

Менеджер: Олег Замятин
Тел. +7 (962) 680-36-27

Комплектации и цены

Стоимость объекта зависит, главным образом, от выбранного материала. Здесь приведены цены на базовую (стандартную без дополнительных опций) комплектацию в разных исполнениях.

В наличии в СПБ у Меги Дыбенко
 
850 000 ₽ -1,73% 865 000 ₽

В базовую комплектацию входят:

В наличии в СПБ у Меги Дыбенко

Данная баня стоит как выставочный образец и будет продана лишь по прошествии года, Можете присматриваться к ней и просить ее забронировать со скидкой.

Дополнительно можно заказать (опции)

Эти опции не входят в стандартную комплектацию. Они существенно повышают комфорт, но не являются обязательными. Хотите чуть больше роскоши и уюта? Смело добавляйте эти приятности к заказу!

Доставка с выставки

Доставка будет считаться отдельно но обратите внимание что уже только за расстояние от площадки до вас, а не из Великого Новгорода

Поможем с расчётами и выбором

Требуется подробная консультация? Свяжитесь с нашими менеджерами. Мы подготовим индивидуальную смету, уточним сроки изготовления и проконсультируем по доставке в ваш регион. Ваша баня начинается с простого разговора!

Олег Замятин

Менеджер выставки «Мега»

Выставка «Мега» расположена по адресу:

г. С.-Петербург, Мурманское ш. 1, 12-ый км, ТЦ МЕГА на Дыбенко (эксподом №17А)

Открыто ПН, ВТ, СР, ЧТ, СБ, ВС с 9:00 до 18:00. ПТ — выходной

Визит только по предварительной договорённости с менеджером!

+7 (962) 680-36-27

perevoznyebani@yandex.ru

Сергей Суслов

Менеджер выставки «Маяк»

Выставка «Маяк» расположена по адресу:

г. В.Новгород, ул. Державина, 21А

Открыто Вт, Ср, Чт, Пт и Сб с 10 до 19 в офисе. Пн и Вс выходные.

Визит только по предварительной договорённости с менеджером!

+7 (905) 292-15-30

perevoznyebani@yandex.ru

Вам могут понравиться эти проекты

В наличии
Цена по запросу

Аукцион наоборот!

Стоимость снижается каждый день.
Цена на завтра 0 ₽

© Проект является интеллектуальной собственностью и охраняется законом об авторском праве. Свидетельство №019-009093-90-93
Находится на выставке «Мега», Санкт-Петербург
Цена по запросу
© Проект является интеллектуальной собственностью и охраняется законом об авторском праве. Свидетельство №019-009093-90-93
Цена по запросу
© Проект является интеллектуальной собственностью и охраняется законом об авторском праве. Свидетельство №019-009093-90-93