Рязань
г. Рязань, улица Маяковского, 49

Двухэтажная баня с террасой 7х11 из бруса

Размеры: 7х11 м
Площадь: 110 кв.м
Цена по запросу
Обсудить проект

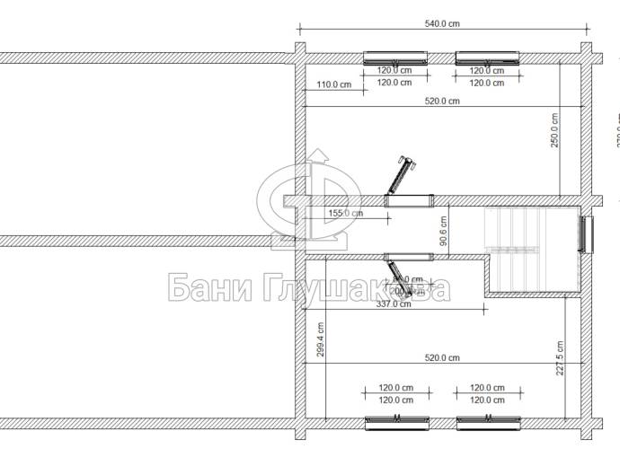
Описание проекта

Представляем наш новый проект — просторную баню 7×11 метров с жилым мансардным этажом и большой крытой террасой, которая легко заменит беседку. Терраса — идеальное место для отдыха с друзьями или семьёй в любую погоду. А в качестве приятного бонуса мы установим в террасу купель с внешней печью — подарок от компании «Бани Глушакова».

Подробнее

Баня построена из клеёного бруса 190×140 мм — прочного, долговечного материала с минимальной усадкой. По желанию клиента возможны варианты из сухого профилированного бруса или по каркасной технологии.

Планировка продумана до мелочей:

  • уютная комната отдыха,
  • парная и душевая,
  • котельная и санузел,
  • две полноценные спальни на мансардном этаже.

Это не просто баня — это полноценное загородное пространство для отдыха и жизни. Хотите что-то изменить в проекте? Без проблем — адаптируем под ваши задачи.

Комплектации и цены

Стоимость объекта зависит, главным образом, от выбранного материала. Здесь приведены цены на базовую (стандартную без дополнительных опций) комплектацию в разных исполнениях.

Поможем с расчётами и выбором

Требуется подробная консультация? Свяжитесь с нашими менеджерами. Мы подготовим индивидуальную смету, уточним сроки изготовления и проконсультируем по доставке в ваш регион. Ваша баня начинается с простого разговора!

Олег Замятин

Менеджер выставки «Мега»

Выставка «Мега» расположена по адресу:

г. С.-Петербург, Мурманское ш. 1, 12-ый км, ТЦ МЕГА на Дыбенко (эксподом №17А)

Открыто ПН, ВТ, СР, ЧТ, СБ, ВС с 9:00 до 18:00. ПТ — выходной

Визит только по предварительной договорённости с менеджером!

+7 (962) 680-36-27

perevoznyebani@yandex.ru

Сергей Суслов

Менеджер выставки «Маяк»

Выставка «Маяк» расположена по адресу:

г. В.Новгород, ул. Державина, 21А

Открыто Вт, Ср, Чт, Пт и Сб с 10 до 19 в офисе. Пн и Вс выходные.

Визит только по предварительной договорённости с менеджером!

+7 (905) 292-15-30

perevoznyebani@yandex.ru

Вам могут понравиться эти проекты