Рязань
г. Рязань, улица Маяковского, 49

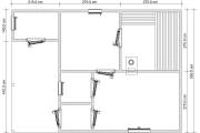
Баня клееного бруса 5,5х7,6

Размеры: 5,5х7,6 м
Площадь: 41.8 кв.м
Цена по запросу
Обсудить проект

Описание проекта

Представленный одноэтажный проект для строительства бани среднего размера на 42 кв.м. предназначен для сборки из любого вида профилированного бруса: сырого, сухого, клееного, кедрового. Конкретно на фото показана баня из клееного профилированного бруса. Отделка производилась сразу после установки сруба — такая баня не требует усадки и позволяет строить сразу под ключ.

Подробнее

Проект можно назвать классическим: простые формы, двускатная крыша, небольшая терраса с крыльцом. Планировка хоть и стандартная, но очень удобная: просторная комната отдыха (сюда вынесена топка), сауна, душевая, туалет, спальня.

Это стационарная баня, требующая фундамент: можно ограничиться фундаментными блоками, однако идеально будет установить винтовые сваи.

Комплектации и цены

Стоимость объекта зависит, главным образом, от выбранного материала. Здесь приведены цены на базовую (стандартную без дополнительных опций) комплектацию в разных исполнениях.

Баня из бруса естественной влажности
 
Уточняйте
Баня из сухого бруса с компенсационными пропилами
 
Уточняйте
Баня из клееного бруса
 
Уточняйте
Баня из бруса кедра
 
Уточняйте
Баня из Клееного Кедра
 
Уточняйте

В базовую комплектацию входят:

Общая комплектация

Лучший способ понять, какие бани мы строим и как они выглядят изнутри — заглянуть в нашу Галерею выполненных работ. Там собраны реальные объекты, по которым сразу виден уровень исполнения и детали отделки.

Раньше мы публиковали подробные списки комплектующих под каждым проектом, но со временем поняли, что это только путает. Одинаковые с виду бани могут сильно отличаться по «начинке» под конкретные задачи заказчика. Чтобы не вводить вас в заблуждение общими цифрами, мы перешли на индивидуальные расчеты.

Просто напишите нашему менеджеру — он подготовит актуальную смету именно под ваш запрос, где будет прозрачно расписано, что входит в стоимость, а на чем можно сэкономить или, наоборот, усилить.

Клееный термомодифицированный брус

За 2024 год мы серьёзно расширили производство термомодифицированной древесины – замечательного строительного материала из дерева, который по своим свойствам больше похож на твёрдый прочный пластик.

О свойствах в видео.

Мы пошли дальше: изготовили термомодифицированный клееный брус! Практически не уязвимый материал. Дома и бани из него не дают усадку, венцы не деформируются от сухости или влажности, не покрываются трещинами и щелями.

В связи с новой продукцией объявляем акцию: при строительстве дома или бани в зимние месяцы стоимость термомодифицированного клееного бруса по цене обычного клееного.

За подробностями обращайтесь к менеджерам!

Брус

Естественной влажности — это тот самый простой и некачественный вариант, который может быть. Обычно я его называю «сырой» или «мокрый» брус. Ни одна фирма — ни моя, ни какая-либо другая, — сушить его естественным путем (обветривать) не будет. Хорошо, если брус полежал на прокладках какое-то время, но в 95% случаев это происходит так: вчера спилили дерево, сегодня сделали из него профиль, а завтра уже привезли на стройку. Вот почему я его называю сырым. Если вы вдруг и решили сэкономить и заказать именно такой брус, то хоть закажите нарезку компенсационных пропилов.

Рассрочка

Для жителей Новгородской области и Великого Новгорода, и других регионов, доступна беспроцентная рассрочка на полгода при первоначальном взносе 50%.

Только при условии личного обращения в наш офис. Дистанционно оформить нельзя. Предложение не суммируется с другими акциями.

Подробности уточняйте у Менеджеров.

Печь KOSTЁR DS Rain 16K

Печь с парогенератором KOSTЁR DS_Rain16К, мы сделали тест-драйв и записали видеообзор на «Костёр» RAIN.
Сделана из котловой стали 4 мм, верхние элементы из нержавеющей стали что делает печь практически не убиваемой

Размер бруса

В указанную цену входит профилированный брус 90х140мм, также можно заказать брус 140х140 и 190х140

Профиль бруса

Строим из профилированного бруса, профиль с «наплывом» — то есть щелей видно не будет, посмотрите видео и новое расширенное видео, сравните с видео обычного бруса.

Углы бруса

Соединение угловой происходит в теплый угол, примыкающий брус стыкуется с помощью ласточкина хвоста

Сборка бруса стен

Немаловажный этап, про который я вам более подробно расскажу и по пунктам опишу все возможные ситуации:

  • Вас уговорили сколотить ваш драгоценный брус на гвозди, мотивировали тем, что шляпки бруса утапливаются и т.п. Вот видео результата. Задам вам вопрос, на который вы сами и ответите: сколько нужно приложить усилий, чтобы продавить гвоздь диаметром 6 мм через дерево высотой 140 мм, и чтобы при этом гвоздь заржавел?! И таких гвоздей много!

  • Вас убедили, что под гвоздь будут сверлиться отверстия в верхнем брусе, то есть он не будет зависать. Да, это вариант даже лучше деревянного нагеля, но в варианте «подешевле» бригаде некогда заниматься этим, ей надо бежать на следующий объект, чтобы накормить семью! (Именно я, Дмитрий Глушаков, в 2007 году войдя в строительный рынок, ввел это новшество в практику. С тех пор ничего не изменилось, термин появился у многих в лексиконе, а вот дрель со сверлом — нет!) Посмотрите мое видео где я подробно об этом рассказываю. Ссылка на видео тут. Добавлено более свежее видео, советую посмотреть оба и главное послушать.

  • Деревянные нагеля. Да, их не забьешь без сверления, но и просверлив брус, нагель не прижимает дерево, и в момент строительства брус может быть сразу с щелями из-за кривизны бруса. Впоследствии он может не улечься на место. Гвоздь со сверлением отверстия чуть большего диаметра позволяет прижать брус, так как он вколачивается в нижний брус, а верхний легко проходит насквозь.

  • Пружинный узел. Наверное, он немного лучше, чем все выше сказанное. Однако есть одно но! Пружины должны быть именно пружинами, а не куском проволоки, скрученным в пружину, которая не будет создавать нужного давления. Поверьте, сейчас и этот элемент штампуют уже некачественно. И опять же, нужно верхний брус сверлить насквозь ступенчатым сверлом, чтобы шуруп проскальзывал внутрь, а не вкручивался в верхний брус.

  • Сочетание нагеля, гвоздя или пружинного узла с металлической шпилькой! Именно свою баню я строил со шпильками и со сборкой на гвозди. Это, вероятно, самый лучший способ.

Обвязка

Обязательно заказывайте двойную обвязку брусом и не менее 150х150мм.

Лаги и перекрытия

Советуем делать из бруса 100х150, не тоньше!!!

Перила на террасе

Сделаем красивый вариант по вашему желанию (если есть терраса), очень не плохо смотрится вариант крест накрест с двойной горизонтальной перемычкой, как на фото этой бани (посмотреть по ссылке), если вы искренне считаете что в найденной дешевой цене кто то будет вам делать что то подобное, то вы ошибаетесь, на 27й минуте видео вы увидите то про что я говорю (смотреть видео)

Ройки

Делаются в оконных и дверных проемах из бруса 50х50

Душевой поддон

В помывочном отделении сделан душевой поддон на полу, со сливным отверстием, деревянными трапиками

Утепление

Полы потолки, стены мансарды (если есть) утепляются минеральной ватой в 100мм и изолируются пароизоляцией

Отделка потолков

Обшивается вагонкой сухой, сорт АБ, толщиной 16мм

Лестница на второй этаж

Если объект двухэтажный, то изготавливаем лестницу из строганного бруса. Ступени из специальной клееной доски. Перила настоящие, круглые с точеными балясинами (страница с фото наших работ с лестницами).

Свесы кровли

Кровля делается не только с широкой свисающей частью, но и толстой, торцы кровли отделываются не вагонкой,а сухой строганной доской 19х145 что придает вашей постройке красивый богатый вид

Обработка обвязки

Покрываем антисептиком обвязочный брус, лаги и черновой пол

Половая доска

Используем половую доску сухую 36мм, установка ее на саморезы (шляпки не видны)

Пологи в парной

Делаются из осиновой бессучковой доски. Мы тщательно шлифуем все торцы, аккуратно снимаем фаски на спилах, чтобы ни одна щепочка не кольнула вас в .... -) Да, именно до такого уровня работы мы дошли, посмотрите фото и оцените сами.

Мебель в баню

Массивная мебель нашего производства, основа из фанеры, верх из массива, стол и две скамейки, есть табуреты но их нужно оговаривать отдельно.

Металлочерепица

Входит в стоимость с ветровыми планками, цвет на выбор

Вентиляция крыши

В любом объекте с не отапливаемым чердачным помещением должна быть вентиляция, отдушина, иначе за зиму у вас там накопятся сосульки на кровле с внутренней стороны (влага, выходящая из помещения, конденсирует), а весной вы будете звонить застройщикам, не понимая почему у вас капает с потолка. Обязательно должна быть и входить в стоимость эта маленькая мелочь, которая облегчит вашу дачную жизнь.

Фронтоны

Мы обшиваем только сухой вагонкой или имитацией бруса. В копеечной стройке нет такого понятия как сухой материал для наружных работ. Еще раз — кто не посмотрел видео, то на 11-й минуте ваши фронтоны вы можете посмотреть тут.

Сдача объекта

Принимайте объект в нужное вам время, зафиксированное в договоре, и не ведитесь на предлоги, что «у нас уже заказана машина, такси, нам надо ехать» и т.д. Если возникла такая спешка, это верный сигнал, что вас хотят обмануть. Сдать объект в темноте, ночью или наспех — это еще одна уловка строителей из варианта «Ну а что вы хотели за такие деньги?» Именно так вам и ответят, когда вы утром не спеша будете осматривать свой дом и обнаружите недочеты! Поверьте, гарантий в копеечной стройке просто нет! Их там по факту нет, даже если они прописаны в договоре.

Инструмент

Немаловажный, а, наверное, ключевой фактор: с каким инструментом приедет бригада. Будет поздно, когда вы узнаете, что к вам приехали строить объект под ключ с бензопилой, молотком и топором. Именно так и будет в варианте «подешевле». Некогда бригаде запиливать торцовкой ваши плинтуса, когда им нужно торопиться на другой объект — все сделают бензопилой! Вас уверят, что они профессионалы, и да, они спецы именно из этого видео.

Окна

Мы используем настоящие деревянные стеклопакеты. Если вам говорят, что будут стеклопакеты или имитация деревянных стеклопакетов, то скорее всего окна будут с вклеенными на силикон стеклами, ручки металлические за 10 рублей, которые при пятом открытии провернутся, дерево будет сырое и резиновые уплотнители если и будут, то только для вида. Мы покупаем окна на большом заводе в Подмосковье, везем их за 500 км не просто так, а потому что они не уступают пластиковым окнам. У них высокое качество сборки, надежный материал, такая же фурнитура — одним словом, нам не стыдно за наши окна. Посмотреть видео наших окон

Двери

Банные и межкомнатные двери мы производим сами. По себестоимости они получаются дороже обычного филенчатого ширпотреба или тех же банных клиновых из полусырой доски. Вы думаете, для чего мне нужно устанавливать вам более дорогие двери, тем самым повышая стоимость? А для того, чтобы не выезжать на гарантийные ремонты! Ссылка на наши двери или просто посмотрите видео.

Стены парной

Из осиновой вагонки А класса (бессучковая)

Дополнительно можно заказать (опции)

Эти опции не входят в стандартную комплектацию. Они существенно повышают комфорт, но не являются обязательными. Хотите чуть больше роскоши и уюта? Смело добавляйте эти приятности к заказу!

Люстра «Звездочет»

Можно заказать такую люстру вместе с баней. Ссылка на страницу где размещена цена и все фото.

Басту

Вентиляция баста, смотрите цену, фото и видео, но уже ставим нашу компактную Димасту, Вентиляция в бане которая сделает нахождение в парной более комфортным, ссылка на видео и второе видео у новой бане бочке

Вешалка "Спилы" №4

Вешалка в баню, очень красивый вариант, сделает баню уютнее ссылка на все фото и видео

Сетка каменка

Дополнительное место под камни которые также хорошо нагреются как и в печи и будут аккумулировать тепло, смотрите мой видео обзор и уже можно заказать каменку из нержавейки нашего производства. видео по ссылке

Приточная вентиляция у печи

Вентиляция такого типа затягивает воздух в зольник, помогая в растопке и поддержания горения дров. Подробнее в видео.

Печь с закрытой каменкой «ГИД 4»

Печь оснащена внутренней закрытой ёмкостью, куда закладываются камни. Это позволяет нагревать камни до 400-500С. Тогда получается мелкодисперсный перегретый пар, который легко переносится и не так экстремально повышает влажность в парной. Подробнее о моделе.

Такую печь за дополнительную стоимость можно установить в практически любую баню. Пожалуйста, ознакомьтесь с видео.

Люстра квадратная «Капли»со стеклом

Можно заказать такую люстру вместе с баней. Фото и описание люстры «Капли».

Светильники на террасу или дорожку

Можно заказать светильник нашего производства для террас или дорожек, Ссылка на фото и видео и цену

Обливное устройство

Можно заказать установку обливного устройства «Водопад» в помывочное помещение, фото видео и стоимость смотрите по ссылке

Дверь металлическая

Посмотреть пример установленной двери можно по ссылке

Вентиляция в душевой

Советуем ставить в душевом помещении вентиляционный клапан, смотрите видео с моим опытом

Приточная вентиляция Второе дыхание

Приточная вентиляция для тех кто любит парится лежа,фото и видео

Приточная вентиляция под печью

Делается под печью для получения свежего воздуха в парной под печью, ссылка на видео

Дверь ПВХ Усиленная

Наиболее хороший и долговечный вариант двери, включает уже полноценный замок с ручкой, потребуется доплата, точнее стоимость можно у знать у менеджера. Ссылка на фото и видео двери

Рисунок между полками

Расстояние между полками можно сделать с орнаментом из тех же досок что и пологи, подробно посмотрите перейдя по ссылке

Спинка в парной

Установить удобную и красивую спинку в парной, фото и видео на странице по ссылке

Доставка

Рассчитывается индивидуально или из Великого Новгорода или Валдая (в зависимости от материала)

Печь

Очень важным элементом в отделке дома или бани служит печь, камин. Будьте очень внимательны, как вам все это сделают. Напомню, некогда бригаде в дешевых объектах делать качественно, а некоторые и не умеют: обкладку кирпичом делают ниже печи, зазор на усадку не оставляют. Качество швов оставляет желать лучшего. Мы делаем кирпичную кладку на полу, сбоку и через стену, под печь кладем металлический лист. Используем дорогие листы минерита «плита Flame». Зайдите в раздел бани из бруса и посмотрите наши работы!

Винтовые сваи

Совет: винтовые сваи должны делать не плотники, которые привезли вам деревяшки, а именно бригада, специализирующаяся на фундаментах. Если вам предложили доставить и сделать все за один раз: и фундамент, и сруб строить будут одни и те же люди, то это повод призадуматься! Посмотрите видео, у меня там рассказано и про винтовые сваи в таком варианте! Ссылка на поучительное видео.

Поможем с расчётами и выбором

Требуется подробная консультация? Свяжитесь с нашими менеджерами. Мы подготовим индивидуальную смету, уточним сроки изготовления и проконсультируем по доставке в ваш регион. Ваша баня начинается с простого разговора!

Олег Замятин

Менеджер выставки «Мега»

Выставка «Мега» расположена по адресу:

г. С.-Петербург, Мурманское ш. 1, 12-ый км, ТЦ МЕГА на Дыбенко (эксподом №17А)

Открыто ПН, ВТ, СР, ЧТ, СБ, ВС с 9:00 до 18:00. ПТ — выходной

Визит только по предварительной договорённости с менеджером!

+7 (962) 680-36-27

perevoznyebani@yandex.ru

Сергей Суслов

Менеджер выставки «Маяк»

Выставка «Маяк» расположена по адресу:

г. В.Новгород, ул. Державина, 21А

Открыто Вт, Ср, Чт, Пт и Сб с 10 до 19 в офисе. Пн и Вс выходные.

Визит только по предварительной договорённости с менеджером!

+7 (905) 292-15-30

perevoznyebani@yandex.ru

Вам могут понравиться эти проекты

Цена по запросу
Цена по запросу
Цена по запросу